Objektdetails

Adresse
Eschborn
Gesamtfläche
17.623,07 m²
freie Fläche
3.883,91 m²
Grundstücksfläche
580,00 m²
Teilbar ab
440,15 m²
Mietpreis pro qm
17,50 €/m²
Anzahl Etagen
6

Energie

Stromverbrauchswert
86.00 kWh/m²a
Wärmeverbrauchswert
79.00 kWh/m²a

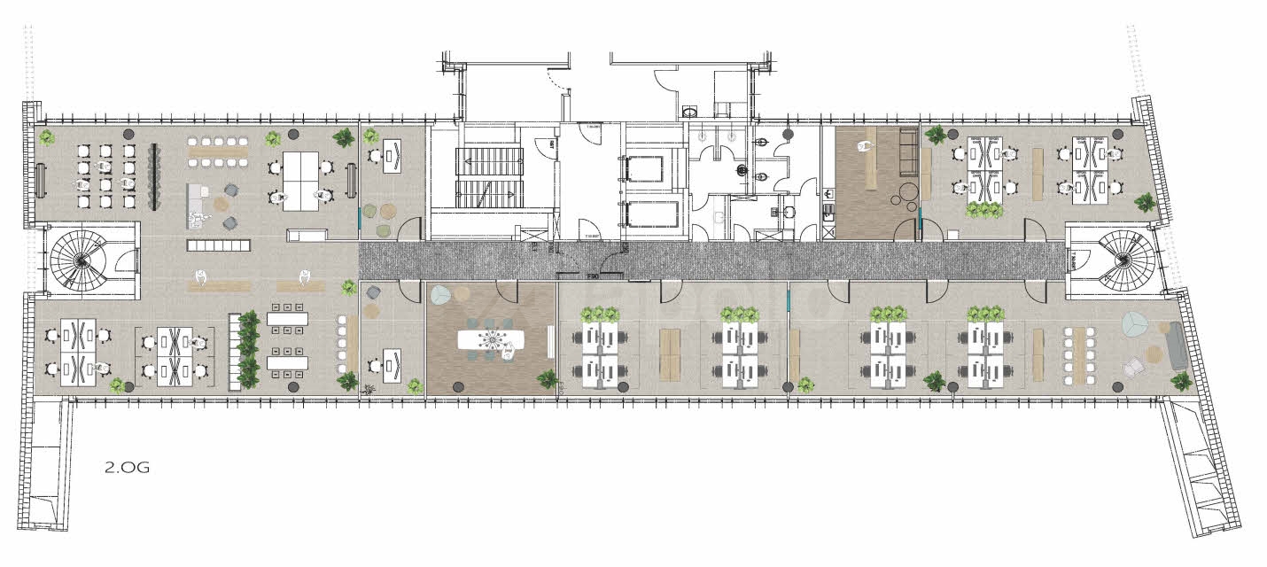
Grundriss

2. OG
Eschborn ist eine Stadt im Main-Taunus-Kreis in Hessen. Sie gehört zur Stadtregion Frankfurt und grenzt nördlich an Frankfurt am Main.

Eschborn bietet u. a. aufgrund seiner Nähe zu Frankfurt am Main und seiner guten Erreichbarkeit zirka 30.000 Arbeitsplätze (Stand: 2011). Sie konzentrieren sich vor allem im Gewerbegebiet Süd sowie in den Groß- und Einzelhandelsunternehmen im Osten und Westen der Stadt. Knapp 90 Prozent sind im Dienstleistungsbereich angesiedelt, u. a. bei den Unternehmen Vodafone, Deutsche Bank, Deutsche Börse, VR Leasing, Siemens, Deutsche Telekom, Ernst & Young, IBM, Techem und Randstad Deutschland.

Die Liegenschaft befindet sich in unmittelbarer Nähe zur S-Bahn Haltestelle Eschborn. Diese bietet eine direkte Anbindung über die Linien S3 und S4 an den Frankfurter Hauptbahnhof die Fahrtzeit beträgt ca. 15 Minuten.
Martin Höppler
+49(0) 69 970 50 5-125
martin.hoeppler@nai-apollo.de
Exposé herunterladen