Objektdetails

Adresse
Frankfurt am Main
Gesamtfläche
2.339,10 m²
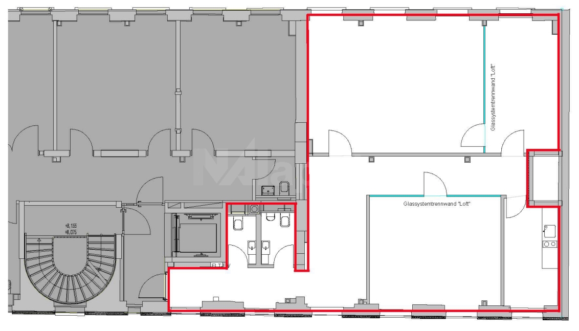
freie Fläche
132,00 m²
Teilbar ab
132,00 m²
Mietpreis pro qm
39,39 €/m²
Anzahl Etagen
5

Grundriss

2. OG
Die Innenstadt ist der zentrale Stadtteil von Frankfurt am Main. Sie erstreckt sich im Norden und Osten rund um den Stadtteil Altstadt. Innenstadt und Altstadt bilden das innerhalb der Frankfurter Wallanlagen liegende rechtsmainische Stadtgebiet und sind dadurch auf dem Stadtplan deutlich zu erkennen. Ein Kontrast zu den Parkanlagen bieten die Wolkenkratzer des Bankenviertels. In der Innenstadt befindet sich auch die Zeil, eine der größten deutschen Einkaufsstraßen, Boulevards wie die Kaiserstraße und die Große Bockenheimer Straße („Freßgass“), die Straßenschlucht Neue Mainzer Straße sowie zentrale Plätze wie die Hauptwache, die Konstablerwache oder der Roßmarkt. Zu den vielen bekannten Bauwerken des Stadtteils gehören die Alte Oper, die Hauptwache, der Eschenheimer Turm, die Börse, der Justizpalast, das Hotel Frankfurter Hof, große Kaufhäuser wie die Zeilgalerie und Hochhäuser wie der Commerzbank-Tower oder der Maintower. Die Innenstadt unterteilt sich, von Westen nach Osten, in folgende Viertel: Bankenviertel, Opernviertel, Zeil und Umgebung, Gerichtsviertel, Allerheiligenviertel, Fischerfeldviertel.
Nikita Kogan
+49(0) 69 970 50 5-149
nikita.kogan@nai-apollo.de
Exposé herunterladen