Objektdetails

Adresse
Frankfurt am Main
Gesamtfläche
4.735,99 m²
freie Fläche
1.179,00 m²
Grundstücksfläche
2.478,00 m²
Teilbar ab
214,00 m²
Mietpreis pro qm
23,00 €/m²
Anzahl Etagen
6

Energie

Endenergiebedarf
365.50000 kWh/m²a
Primärer Energieträger
Gas

Ausstattung

Brandmeldeanlage
Code-Karten-System
Einbauschränke
Gegensprechanlage
Personenaufzug
Sanitäreinrichtungen getrennte
Teeküche(n)

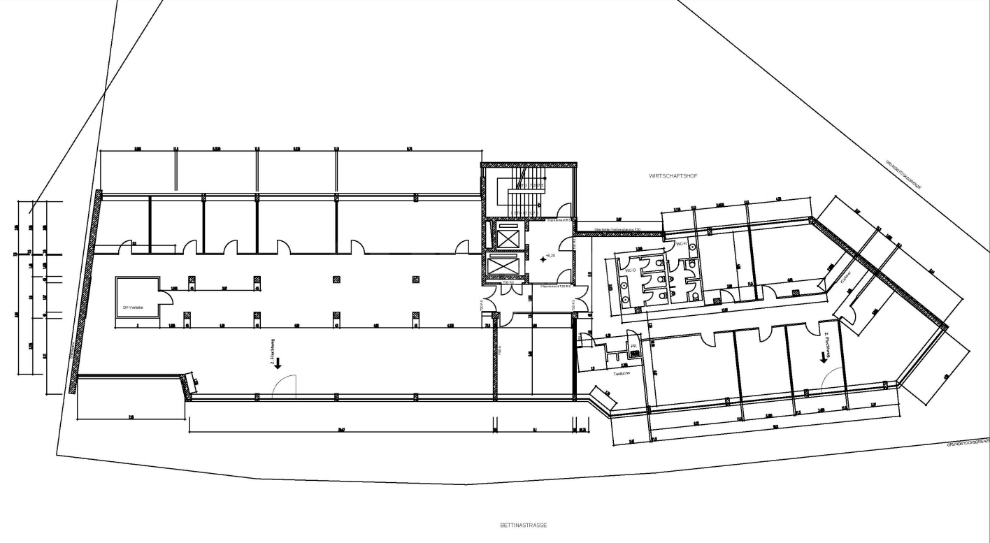
Grundriss

2. OG
Das Frankfurter Westend bildet zwei Stadtteile von Frankfurt am Main. Nach ihrer Geografischen Lage heißen sie Westend-Nord und Westend-Süd.
Zusammen mit dem Bahnhofsviertel, dem Nordend und dem Ostend gehören beide Stadtteile zu den gründerzeitlich bebauten und hoch verdichteten Frankfurter Innenstadtbezirken. Das Westend, gilt neben dem „Bankenviertel“ als einer der repräsentativsten und gefragtesten Standorte Frankfurts für Büronutzer. Hier befinden sich zahlreiche Villen aus der Gründerzeit, die größtenteils unter Denkmalschutz stehen als auch. Das Westend bietet aber auch Nutzern die moderne Bürofläche nachfragen einige Möglichkeiten wie z. Bsp. das „Westend-Duo“ oder auch den „Opern-Turm“.
Nikita Kogan
+49(0) 69 970 50 5-149
nikita.kogan@nai-apollo.de
Exposé herunterladen