Objektdetails

Adresse
Frankfurt am Main
Gesamtfläche
9.008,84 m²
freie Fläche
1.186,00 m²
Grundstücksfläche
3.216,00 m²
Teilbar ab
310,00 m²
Mietpreis pro qm
10,00 €/m²
Anzahl Etagen
6

Ausstattung

Personenaufzüge
Zugangskonstrollsystem

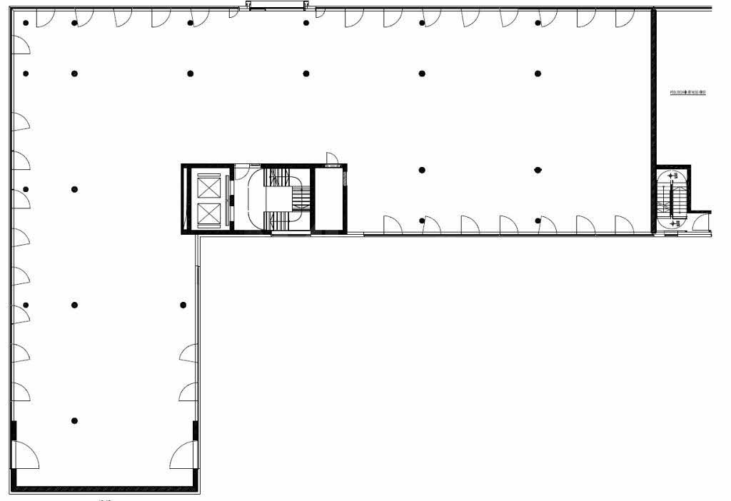
Grundriss

2. OG blanko
Der Stadtteil liegt im Ortsbezirk Innenstadt IV und grenzt im Westen an den Stadtteil Innenstadt, im Nordwesten an das Frankfurter Nordend, im Norden an Frankfurt-Bornheim, im Nordosten an den Riederwald im Osten an Frankfurt-Fechenheim, und im Süden auf der gegenüberliegenden Mainseite an Offenbach am Main, Frankfurt-Oberrad und Sachsenhausen-Nord. Mit dem Frankfurter Zoo beherbergt das Ostend auch eine über Frankfurt weit hinaus bekannte Institution. Jedoch hat der Stadtteil durch die durchgeführten Sanierungsmaßnahmen in letzter Zeit stark an Attraktivität gewonnen. Das Ostend ist mit dem S-Bahn-Haltepunkt Ostendstraße an das Netz der S-Bahn Rhein-Main angeschlossen. Bis auf die S7 halten dort sämtliche S-Bahn-Linien. Zudem gibt es mehrere U-Bahn-Stationen der Linien U 6 und U 7, die Naherschließung ergänzen die Linien 11 (Fechenheim – Höchst) und 14 (Bornheim – Neu-Isenburg) der Frankfurter Straßenbahn. Mit dem Ostbahnhof verfügt es zudem über einen Regionalbahnhof für die Züge Richtung Hanau und Würzburg. Die Hauptstraße des Stadtteils ist die Hanauer Landstraße.
Nikita Kogan
+49(0) 69 970 50 5-149
nikita.kogan@nai-apollo.de
Exposé herunterladen