Objektdetails

Adresse
Frankfurt am Main
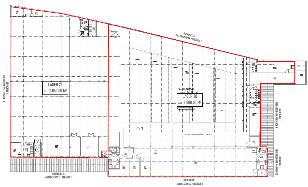
Gesamtfläche
11.816,20 m²
freie Hallenfläche
3.848,00 m²
Grundstücksfläche
7.100,00 m²
Mietpreis pro qm
5,50 €/m²

Ausstattung

Fahrstuhl
Ja
Hallenhöhe
3,80 m
Weitere Ausstattungen
Lastenaufzug
Rolltor(e)
Sprinkleranlage
Trafostation

Grundriss

Grundriss EG
Moritz König
apollo real estate GmbH & Co. KG
+49(0) 69 970 50 5-156
moritz.koenig@nai-apollo.de
Exposé herunterladen