Objektdetails

Adresse
Frankfurt am Main
Gesamtfläche
8.504,00 m²
freie Fläche
1.625,00 m²
Grundstücksfläche
4.089,00 m²
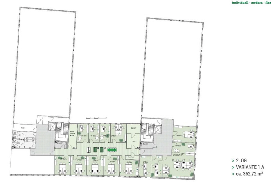
Teilbar ab
360,00 m²
Mietpreis pro qm
Auf Anfrage
Anzahl Etagen
3

Energie

Stromverbrauchswert
8.30 kWh/m²a
Wärmeverbrauchswert
110.50 kWh/m²a
Primärer Energieträger
Gas

Ausstattung

Code-Karten-System
Kameraüberwachung
Personenaufzüge
Repräsentativer Eingangsbereich

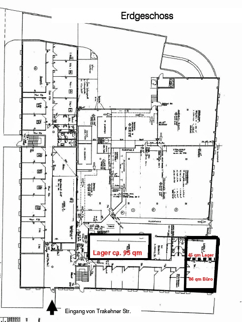
Grundriss

Regelgrundriss Grundriß EG
Das Objekt befindet sich in ausgezeichneter Lage im Westen von Frankfurt, im Stadtteil Hausen. Diese Lage bietet einen optimalen Anschluss an den ÖPNV, in der unmittelbaren Umgebung befinden sich mehrere U-Bahnstationen worüber man innerhalb kurzer Zeit in die Innenstadt von Frankfurt gelangt. Aufgrund der Nähe zur Ludwig-Landmann-Straße (B44) gelangt man innerhalb weniger Minuten zur Autobahn A66 und hat darüber hinaus auch weiteren Anschluss an das gesamte Autobahnnetzwerk.
Nikita Kogan
+49(0) 69 970 50 5-149
nikita.kogan@nai-apollo.de
Exposé herunterladen