Objektdetails

Adresse
Kirchheim unter Teck
Gesamtfläche
23.932,00 m²
freie Hallenfläche
15.483,80 m²
Grundstücksfläche
36.448,00 m²
Mietpreis pro qm
Auf Anfrage

Ausstattung

Hallenhöhe
4,80 m

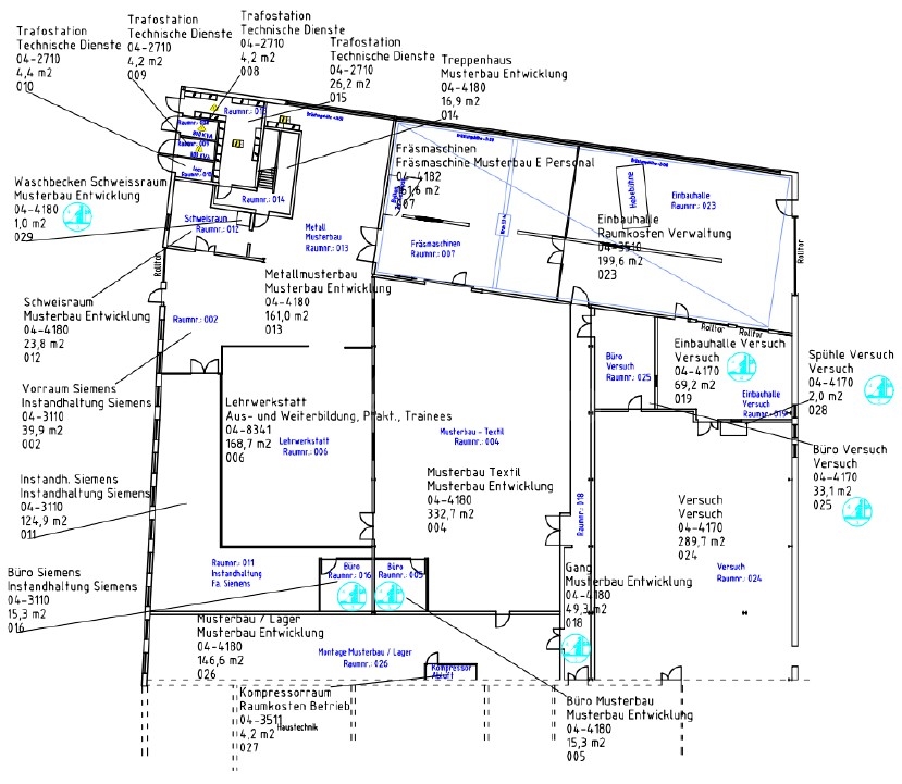
Grundriss

Grundriss - Gebäude 1A - EG
Moritz König
apollo real estate GmbH & Co. KG
+49(0) 69 970 50 5-156
moritz.koenig@nai-apollo.de
Exposé herunterladen