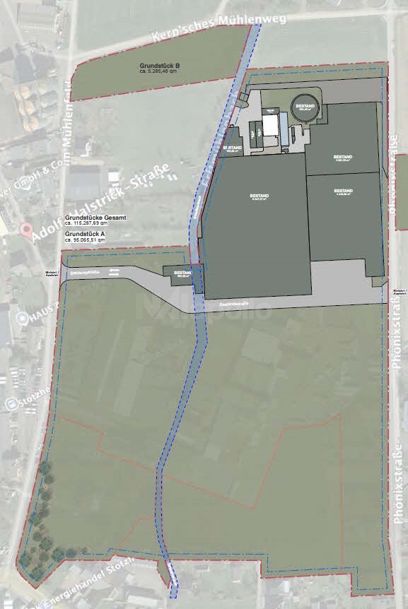
Property details

Address
Euskirchen
Total area
18.082,00 m²
freie Hallenfläche
17.800,00 m²
Plot size
118.500,00 m²
Rent per sqm
On request

Equipment

Ramp
Ja
Hall height
12,00 m

Floor plan

Lageplan
Stefan Weyrauch
apollo real estate GmbH & Co. KG
+49(0) 69 970 50 5-169
stefan.weyrauch@nai-apollo.de
Download exposé